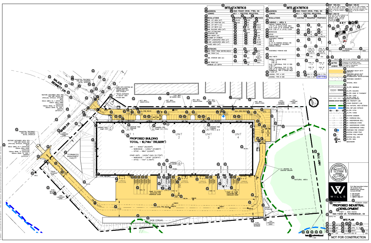
Applications for Zoning By-law Amendment and Site Plan Approval
File Number: Z2511 and SPC1032
Owner: Moloney Development Corporation
Applicant: LandDesign
Development Description
The applicant proposes to rezone the lands to permit a 6-storey, 75 unit residential apartment building, including at-grade parking spaces, short- and long-term bicycle parking and common amenity space for the residents. The zoning by-law amendment proposes site-specific zoning regulations to permit the concept as proposed, including regulations relating to lot dimensions, building setbacks, maximum height, dwelling unit size, parking lot design and layout. The Zoning By-law Amendment and Site Plan Approval applications are being concurrently reviewed by City and agency staff.
Statutory Public Meeting
Pursuant to Section 34 of the Planning Act, R.S.O., 1990, c.P.13, the City of Peterborough General Committee will hold a Public Meeting in the Council Chambers, City Hall, at 6:00 p.m. on Monday April 13, 2026. A Staff report will be available by 12:00 p.m. on the City's Website on Thursday April 9, 2026.
If you wish to be notified of the decision of the City of Peterborough on the proposed Zoning By-law amendment, you must make a written request to:
John Kennedy, City Clerk
City of Peterborough, City Hall
500 George Street North
Peterborough, Ontario K9H 3R9
Additional Information
For more information contact the Land Use Planner, Planning Division.


